五楼自拍

横琴口岸过渡期通关设施出境报关报检楼三层写字间租赁竞价邀请函
发表时间:2015-01-27
分享到:

横琴口岸过渡期通关设施

出境报关报检楼三层写字间租赁竞价邀请函

 

   为感谢贵司对横琴口岸长期以来的信任和支持,兹定于2015210日(星期二)下午200分在我司__第二__会议室进行横琴口岸过渡期通关设施出境报关报检楼三层写字间租赁竞价,热忱期待您的参与和竞价。具体内容如下:

一、项目名称:横琴口岸过渡期通关设施出境报关报检楼三层写字间租赁竞价

二、项目地点:大横琴口岸建设开发有限公司___第二___会议室

三、项目内容:本次招租的横琴口岸过渡期设施内写字间位于出境报关报检楼三楼,共有10间写字间,详见附件(三)。写字间交付情况为简装修交付,其中包括:墙身、地板、天花及电路等。我司现拟对写字间的三年租赁权进行公开竞价,写字间只允许经营报关报检类的相关行业,并须将经营资质报送五楼自拍 口岸建设开发有限公司同意及备案。

四、竞价文件组成

1.报价书要求及数量:中文,正本一份,副本二份,正本副本均须加盖公章;报价书格式详见附件(一)。全部竞价文件递出后不予退还。

2.竞价企业相关的资格证书:包括有效的“法人营业执照”副本内页(提供复印件并加盖公章,内容应含企业法人年检情况记录和经营范围并加盖公章)、税务登记证(提供复印件并加盖公章)、组织机构代码证(其中增值税一般纳税人资格证书等资料根据具体竞价项目内容提供,提供复印件并加盖公章)以及有效的报关业务许可证或相关文件(提供复印件并加盖公章)等。

3.竞价企业简介。

4.法人授权代表身份证(复印件并加盖公章)和法人授权委托书。

5.以上证明文件均需加盖单位公章,全部竞价文件需用信封装好密封并在封口处加盖公章。以上资料递交后不予退还。

五、竞价书的递交

请于竞标日前三天将承租人的竞价书(须密封并加盖公司公章)提交到五楼自拍 口岸建设开发有限公司1号楼一层1101室曹小姐处递交。

承租人须于竞标日2015210日下午2点到达竞标地点:五楼自拍 口岸建设开发有限公司二楼第二会议室参与写字间竞投,未在当天规定时间到达的意向承租人将视为放弃竞标。

如竞价方有任何疑问,可与本项目负责人及时联系、咨询:

联系人:曹晶                

联系电话:0756-631393018688162188

传真:0756-6313900                 

地址:珠海市横琴新区景顺路(横琴新区规划建设展示厅旁)

六、竞价说明:

1.由于资源和场所有限,本次竞价项目均由公司相关部门人员组成竞价评审小组,进行公平、公正的评审;不设竞价方现场解答竞价的流程。

2.为公平竞争,我们同时以同样条件邀请其他公司对我方做出报价。

3.写字间用途仅限于报关报检类的合法经营。

4.竞价价格只含基本租金,不含水电及物业管理等其他相关费用。

5.我方只考虑与所附报价要求相符的报价书,详见附件(一)。

6.我们有权采纳报价的全部或一部分。若贵方报价最终为我方所接受并签署合同,贵方将承担合同项下乙方所承担的所有责任和义务。本次进行竞标的写字间竞拍起拍价为350/平方米(建筑面积)/月起,若全部参与竞标的单位的报价未能高于此价,则此标流拍。

7.竞价书资料应完整、清晰,对由于竞价人设计遗漏或设计错误而造成的需要补充投资的费用,由竞价人自行承担。    

8.价格是我们选择最终合作单位考虑的重要因素,但并不是唯一因素。

9.本函件只是邀请报价,我司无义务对全部递交的报价书发出承诺。我司有权根据实际需要与各报价方进行价格复议,被最终选择的竞价方将根据合同法与我司订立正式合同。

10.本邀请函的解释权在五楼自拍 口岸建设开发有限公司。

11.本邀请函以传真件或电子邮件的形式发出,收到后请及时书面传真确认给我公司。

顺颂商祺!

 

 

五楼自拍 口岸建设开发有限公司

2015年127

 


附件(一):

 

横琴口岸过渡期通关设施

出境报关报检楼三层写字间租赁竞价报价表

 

竞标写字间:

写字间位于出境报关报检楼三楼,共有10间写字间出租(详见附件(二))。

此次竞投的写字间为第        号。

竞标单位:

 

联系人:

 

联系方式:

 

竞标价格:

(格式:X/平方米(建筑面积)/月)

 

竞标时间:

2015210

 

附件(二):

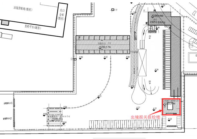
横琴口岸过渡期设施出境报关报检楼布局图


附件(三):

横琴口岸过渡期通关设施项目出境报关报检楼三层写字间平面图:


附件(四):

横琴口岸过渡期通关设施出境报关报检楼3楼招租写字间建筑面积表

 

横琴口岸过渡期通关设施出境报关报检楼

三楼招租写字间建筑面积表

 

名称

序号

房间号

建筑面积(㎡)

横琴口岸过渡期通关设施

出境报关报检楼

三楼招租写字间

1

A301

12.54

2

A302

12.14

3

A303

12.14

4

A304

12.14

5

A305

12.88

6

A308

10.54

7

A309

10.29

8

A310

10.29

9

A311

10.63

10

A312

59.19

 


附件(五):

横琴口岸过渡期通关设施项目出境报关报检楼三层写字间租赁合同:

合同编号:

 

 

 

 

 

横琴口岸过渡期通关设施

 

出境报关报检楼三层写字间

租赁合同

 

 

 

 

 

 

甲方(出租方):五楼自拍 口岸建设开发有限公司

乙方(承租方): _____________________________


横琴口岸过渡期通关设施

出境报关报检楼三层写字间租赁合同

                                                                                            

甲方(出租方:五楼自拍 口岸建设开发有限公司

法定代表人/负责人: 朱忠隆

地址:珠海市横琴新区景顺路(横琴新区规划展示厅旁)

 

乙方(承租方):

法定代表人/负责人:

地址:

 

根据《中华人民共和国合同法》以及国家有关房屋租赁法规的规定,为保护租赁双方当事人的合法权益,明确相关的权利义务关系,甲乙双方经协商一致,签订本合同。

第一条 房屋位置及面积概况

甲方同意将位于珠海市横琴新区景顺路横琴口岸过渡期通关设施出境报关报检楼的  第三    号写字间(建筑面积    ㎡,以下简称“租赁房产”),出租给乙方有偿使用。乙方承租的写字间只允许经营报关报检类的相关行业,并须将经营资质报送甲方同意及备案。租赁期间乙方不得变更经营范围及方式,否则视为乙方违约,甲方有权提前解除合同,收回租赁房产,同时不予退还合同履约保证金并追究乙方的违约责任。

租赁房产按现状租赁,乙方已于签约前实地查看且没有任何异议。

第二条  租赁期限

1、租赁期限为 3 ,自甲方与乙方签订合同之日开始计算。

2、如乙方有意在合同租赁期满后,续租本合同项下房产,须在本合同租赁期届满前提前90日书面向甲方提出续租申请,在同等条件下,乙方享有优先权;乙方未提前90日书面提出申请并签订续租合同的,视为乙方主动放弃有优先权。

第三条  基本租金缴纳方式

 1、除合同另有约定外,乙方于每月10日(遇法定节假日顺延)前将当月基本租金足额汇入甲方指定账号内(开户单位:五楼自拍 口岸建设开发有限公司;开户银行:中国银行珠海横琴分行; 账号:7354 5774 4131)。

本合同每月基本租金标准为人民币大写:      /平方米/月(小写:       /平方米/月),基本租金按租赁房产建筑面积计算,乙方每月需向甲方支付的基本租金为:人民币      元(小写:       元)。

2、相关费用:乙方租赁期间产生的除基本租金以外的一切费用(如:物业管理费、电视费、电话费、网络费、垃圾处理费等),由乙方按相关单位要求的标准、时间、方式直接向有关单位缴纳,水电费以乙方实际租赁写字间建筑面积占出境报关报检楼建筑面积的比例分摊实际产生的费用,乙方应于每月10号前向垫付单位(即甲方)支付上月的水电费。若乙方未按时缴付,每逾期一日,乙方应向甲方支付欠付水电费用金额3%的违约金;水电费逾期30天(含当天)或累计逾期30天(含当天)或累计欠付水电费金额累计达到1000元(含本数),乙方除支付违约金外,甲方还有权协助有关单位采取停水、停电等措施并/或提前解除本合同,收回租赁房产,并不退还履约保证金,对于乙方在租赁期间所作的装修,甲方不作任何补偿,同时,乙方应自行承担一切责任及损失。

3、履约保证金:为保证本合同全面履行,乙方须于合同签订之日起10日内向甲方一次性交纳租赁房产首二个月的基本租金,同时,须另交纳一个月基本租金人民币_______元整(小写:       元)作为履约保证金,从第3月起乙方按月交纳租金,交纳日期为每个月10日前。合同期满或解除后,如乙方按时缴清本条所述各项费用且无违约行为,甲方在于房屋及水电、通讯等设施清点验收无误并接收租赁房产之日起7个工作日内凭相关发票或收据将履约保证金一次性无息全额退还乙方。

第四条  房屋租赁期间房屋的修缮及设备的维修

甲乙双方确认按“谁使用谁维护”的原则,乙方对租赁房产的墙面、水、电等设施及其他设备须定期维护保养,保持良好、正常的使用状态,对承租期间发现的缺陷进行必要的维修,维修费用由乙方承担。

第五条  甲方与乙方主体变更的处理

    1、甲方在出让租赁房产所有权时,应提前30天书面通知乙方。

  2、租赁期间,甲方如将该房屋所有权转移给第三方(同等条件下,乙方放弃优先购买权的),在不变更本合同内容的前提下,不必征得乙方同意,但应告知乙方所有权转移情况,并由所有权取得方向乙方出具确认书,同意无条件承接本合同约定应由甲方承担的义务。所有权转移后,所有权取得方即成为本合同的当然出租方,享有原甲方享有的权利和承担原甲方的义务。

3、乙方在租赁期内,不得无故退租或未经甲方的书面同意自行将租赁房产分租或转租给第三方,否则,甲方有权提前解除合同,并没收履约保证金及追究乙方的违约责任。

第六条  双方责任

    (一)甲方责任

    1、甲方于签订合同之日起10个日历天内向乙方移交租赁房产,未按合同规定时间提供租赁房产时,租赁期限不顺延,乙方可将基本租金等费用顺延至甲方移交钥匙之日起缴纳。

2、合同期满或解除后,如乙方无违约行为且及时结清租金等第三条约定的全部费用,甲方在对租赁房产及水电、通讯等设施清点验收无误并接收租赁房产之日起7个工作日内凭相关发票或收据将履约保证金一次性无息退还乙方。

3、租赁期间甲方有权对乙方的经营活动进行监督,但不干涉乙方在合同约定经营范围内的合法经营活动。

4、租赁房产交付情况为简装修交付,其中包括:墙身、地板、天花及电路等。

(二)乙方责任

1、乙方必须能独立承担民事责任,乙方须为企业,并须提供以下文件:

1) 企业法人身份证明;

2) 法人授权委托书及授权人身份证明;

3) 企业经营执照复印件并具备报关报检类业务经营资质;

2、按时交纳基本租金。逾期缴纳的,根据所欠金额,按每日1 %的标准向甲方支付滞纳金。乙方连续超过两个月不缴纳或欠费金额总计达到两个月的基本租金或累计3个月未按时足额缴纳基本租金,甲方有权提前解除合同,收回租赁房产,并不退还履约保证金并追究乙方的违约责任;对于乙方在租赁期间所作的装修,甲方不作任何补偿。

3、如因乙方原因未及时缴纳水电费、物业管理费等相关费用造成甲方的损失,由乙方全权负责。

4、未经甲方书面同意,乙方不得私自在租赁房产外墙进行装饰、更改房屋结构、加建、搭建任何建筑,否则由此而造成的法律责任和经济损失由乙方承担,甲方有权提前解除合同,并不退还履约保证金且有权追究乙方的违约责任。

5、乙方应服从当地有关管理部门的管理,自觉遵守有关法律、法规,不得进行违法、违规活动。否则,甲方有权提前解除合同,收回出租房屋,并不退还履约保证金。对于乙方在租赁期间所作的装修,甲方不作任何补偿;乙方承担因此产生的一切法律责任。

6、乙方不得在租赁房产内非法存放易燃、易爆、放射性等有污染或有毒等危险物品,承担对租赁房产的安全、防火、卫生(门前三包)责任,并定期检查和排除一切消防安全隐患,因乙方原因引起火灾或其他事故而导致的所有损失均由乙方承担。甲方有权提前解除合同,收回出租房屋,并不退还履约保证金。给甲方造成损失的,乙方应当提供赔偿。乙方负责人为租赁房产的消防责任人。

    7、爱护和正常使用房屋及房屋内一切电器等设备。因乙方使用造成房屋、设备等损坏的,乙方必须负责修复或赔偿。如乙方需要在租赁房产内安装超过现有水电负荷容量的设备、设施,必须得到甲方书面同意,费用由乙方自理。未经甲方书面同意和未办理相关手续而产生的事故或处罚,由乙方承担全部责任。同时,甲方有权提前解除合同,收回出租房屋,并不退还履约保证金及追究乙方的违约责任。

8、本合同期满(乙方不再续租)或提前解除时,入墙家俬、隔断、天花、地面等固定装饰无偿移交给甲方;乙方自行添置的可移动的设备等物品属乙方所有。如乙方在租赁期满时不再续约或合同提前解除,乙方应在租赁期届满之日起5日内或合同解除之日起5日内搬离承租房屋并移交甲方,逾期不搬出的,视为乙方放弃物品所有权,归甲方所有,甲方有权对其进行处置;乙方应保持屋内电器等设备完好并按交付使用时的清洁状态和使用状态归还给甲方,如有损坏,甲方有权按损坏程度要求乙方计价赔偿。

9、未经甲方书面同意,乙方不得将租赁房产分租或转租他人或改变租赁用途,如乙方违反,甲方对乙方的前述行为不予承认,有权提前解除合同,不予退还乙方所交纳的履约保证金并追究其违约责任。

10、在租赁期内,如乙方确因特殊情况需要提前退租,必须提前30日书面通知甲方并经甲方同意且办理提前解除合同和退场清点交接手续,否则视乙方违约,甲方有权解除本合同,且乙方所交纳的履约保证金不予退还并追究乙方的违约责任。

11、乙方无论是提前还是按时退租的,都应向甲方提交退租清单,列明退租时承租物业的状况及需要交接清点验收物品的数量,甲方代表验收清点无误后签字确认方视为乙方履行完毕交还租赁标的物的义务。

12、乙方应当足额支付其雇请的雇员或劳动者的工资,因乙方欠薪导致甲方损失的,甲方有权扣除乙方的履约保证金作为对甲方的赔偿,不足部分可以向乙方追偿。

第七条  免责条款

 发生属于现行法律认可范围内的战争、自然灾害及国家法律、法规的变化等不可抗力,或甲方上级部门指令等情形致使合同不能继续履行的,双方互不承担违约责任。任何一方都应及时将免责事由书面通知对方并提供相关证据。合同终止履行后,甲方向乙方一次性无息退还履约保证金,甲方按照乙方实际使用时间收取租金及相关费用,乙方投入的固定装修不予补偿。

第八条  其它约定事项

1、本合同写明的联系人、地址、电话等信息为双方正式联系方式,关于合同履行中需要传递的信息均按照以上确定方式联络,如发生变动,变动方应及时书面告知对方;否则造成信息不畅所产生的损失由过错方承担。

2、双方在本合同执行过程中如发生争议,应本着友好合作的原则协商解决;如协商不能解决时,双方同意通过租赁房产所在地人民法院诉讼解决。

3、本合同未尽事宜,由甲乙双方另行协商签订协议,并作为本合同的补充协议。

4、本合同一式拾份,甲方执正本壹份,副本陆份;乙方执正本壹份,副本贰份,具有同等法律效力。合同正本与副本具有同等法律效力,但当合同正本与副本不一致时,以合同正本为准。

5、本合同自甲乙双方法定代表人或授权代表人签字且盖章之日起生效。

 

 

 

 

 

 

(以下无正文,仅为签字盖章部分)

甲方:                               乙方:

五楼自拍 口岸建设开发有限公司

法定代表人                           法定代表人

(或授权代表人):                    (或授权代表人)

联系地址:                           联系地址:

珠海市横琴新区景顺路

(横琴新区规划展示厅旁)

邮政编码:519000                     邮政编码:

联系电话:0756-6313918               联系电话:

传真电话:0756-6313900               传真电话:

   年    日签约于珠海                年  月  日签约于珠海


横琴口岸过渡期通关设施项目出境报关报检楼三层写字间竞价邀请函

横琴口岸过渡期通关设施项目出境报关报检楼三层写字间平面图

横琴口岸过渡期设施出境报关报检楼布局图