五楼自拍

横琴口岸过渡期通关设施项目出境报关报检楼三层写字间招租公告
发表时间:2015-01-27
分享到:

我司拟将珠海市横琴新区景顺路横琴口岸过渡期通关设施出境报关报检楼三楼写字间出租。其中将要进行出租的写字间共有10间,各写字间面积详见附件(二)。写字间交付情况为简装修交付。

我司现拟对写字间的三年租赁权进行公开竞价,写字间只允许经营报关报检类的相关行业,并须将经营资质报送五楼自拍 口岸建设开发有限公司同意及备案。承租权采用公开竞标方式,写字间租金出价最高者将获得该写字间承租权,但价高不是唯一考虑的因素。

一、承租条件

承租铺面者必须具备下列条件:

1、          承租人必须能独立承担民事责任,承租人须为企业,并须提供以下文件:

1)          企业法人身份证明;

2)          法人授权委托书及授权人身份证明;

3)          企业法人营业执照复印件并具备报关报检类业务经营资质;

2、写字间位于横琴口岸过渡期设施出境报关报检楼内三楼,承租人只允许经营报关报检类的相关行业,并须将经营资质报送五楼自拍 口岸建设开发有限公司同意及备案。

3、经营使用期间如需转租他人,该转租人亦须经营报关报检类的行业,另须以书面形式向五楼自拍 口岸建设开发有限公司提出申请并获得同意,并办理相关登记手续,转租不改变承租人与五楼自拍 口岸建设开发有限公司的租赁合同关系,但双方租赁合同另有约定不能转租的除外。

4、承租人获得承租权后,应于收到承租通知之日起10日内与五楼自拍 口岸建设开发有限公司签订写字间租用协议,否则视为放弃承租权。放弃承租权的,五楼自拍 口岸建设开发有限公司将对该写字间重新发起竞标,重新选择承租人。

二、租赁期限

租赁期为36个月 ,自我司与最终确定的承租人签订租赁合同之日开始计算,具体租赁期限以最终签订的合同为准。

三、招租方式

1、  承租人资格预审。

由承租人根据“第一条承租条件”的要求报送相关审核材料,经五楼自拍 口岸建设开发有限公司审查符合承租人条件的,可以参与写字间租赁权竞标。

2、          写字间租赁权竞标。

横琴口岸过渡期通关设施出境报关报检楼写字间租赁权采用公开竞标的形式确定,写字间租金出价最高者将获得该写字间承租权,但价高不是唯一考虑的因素。

每间写字间租金最低起拍价以《横琴口岸过渡期通关设施报关公司写字间竞价邀请函》公布的价格为准。写字间竞标租金仅为写字间基本租金,物业管理费及水电费等其他相关费用不含在内,须由承租人自行承担,其中,水电费以承租人实际租赁写字间建筑面积占出境报关报检楼建筑面积的比例分摊实际产生的费用,并由承租人于每月

  号前向垫付单位支付上月的水电费。

四、租金支付方式

合同签订之日,承租人须向五楼自拍 口岸建设开发有限公司交纳2个月写字间租金,同时,每间写字间须交纳一个月租金为履约保证金。从第3个月起承租人按交纳租金,交纳日期为每个月10日前(详细要求以最终签订的合同为准)。

写字间以简装修交付,其中包括:墙身、地板、天花及电路等。如需更写字间内部结构须向五楼自拍 口岸建设开发有限公司提交书面申请及装修方案,经书面确认允许后方可实施。合同期满且不再续租,如无违约行为,全额无息退还履约保证金(详细要求以最终签订的合同为准)。

五、竞价报名办法

承租人竞价报名办法:承租人于写字间竞标日前三天将承租人的竞价书(须密封并加盖公司公章,具体要求以《横琴口岸过渡期通关设施报关公司写字间竞价邀请函》公布的要求为准)提交到五楼自拍 口岸建设开发有限公司1号楼一层1101室曹小姐处递交。

承租人须于竞标日2015年2月10日下午2点到达竞标地点:五楼自拍 口岸建设开发有限公司二楼第二会议室参与写字间竞投,未在当天规定时间到达的意向承租人将视为放弃竞标。

六、咨询电话

联系人:曹小姐    联系电话:0756-6313930

七、相关附件

附件一:

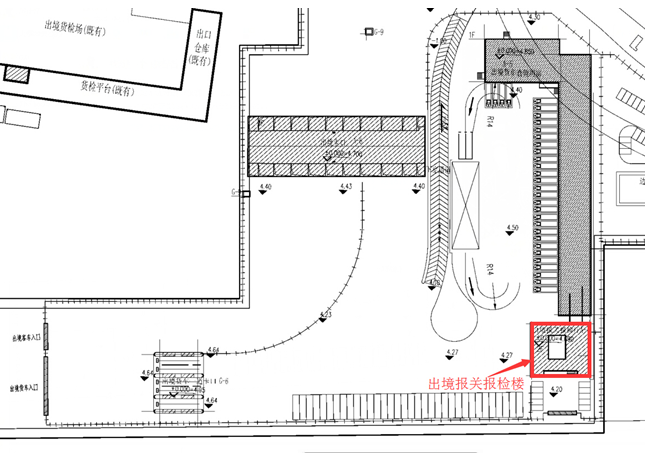
《横琴口岸过渡期设施出境报关报检楼布局图》


 


附件二:

《横琴口岸过渡期通关设施项目出境报关报检楼三层写字间平面图》

附件:横琴口岸过渡期通关设施项目出境报关报检楼三层写字间招租公告

         横琴口岸过渡期通关设施项目出境报关报检楼三层写字间租赁合同

         横琴口岸过渡期通关设施项目出境报关报检楼三层写字间竞价邀请函

         横琴口岸过渡期设施出境报关报检楼布局图

         横琴口岸过渡期通关设施项目出境报关报检楼三层写字间平面图


五楼自拍 口岸建设开发有限公司

                            2015年1月27日